1. Introduktion
This manual provides essential information for the proper installation, operation, and maintenance of the DORMAKABA SVP 6710 self-locking panic coupling lock. Please read these instructions carefully before proceeding with installation or use to ensure safe and correct functionality. This lock is designed for swing doors and features a self-locking mechanism with panic release capabilities.
2. Sikkerhedsoplysninger
The DORMAKABA SVP 6710 lock is certified according to EN 14846 and is suitable for fire and smoke protection doors. It supports panic unlocking via a lever according to EN 179 or a panic rod according to EN 1125. Always ensure that installation complies with local building codes and safety regulations.


3. Produktet er slutview
The SVP 6710 is a high-quality self-locking panic coupling lock designed for robust security and reliable emergency egress. Key features include:
- Self-locking Mechanism: Ensures automatic locking upon door closure.
- Split Push Button: Allows for controlled access from the outside while maintaining panic function from the inside.
- Integrated Surveillance Plug: Provides feedback on lock status (locked, unlocked, door position, handle operation, cylinder plug).
- Duisburg Function: Compatible with various cylinder types, including electronic and freewheel cylinders.
- Two-point Lock: Achieved by spring bias after door closing for enhanced security.
- Universal Control Trap: 24 mm cuff variants suitable for DIN left/right doors.
- Burglary Protection: Up to RC-2 possible when integrated into suitable door systems.

4. Specifikationer
| Feature | Specifikation |
|---|---|
| Modelnummer | 70671000 |
| Type | Self-locking Panic Coupling Lock |
| Mandrel Dimensions (Backset) | 35 mm |
| Cuff Width | 24 mm |
| Retning | Højre |
| Nut (Spindle) | 9 mm split square nut |
| Materiale | Alloy Steel, Stainless Steel (cuff and lock plate) |
| Lock Box Material | Galvaniseret stål |
| Strømforbrug | Max. 0.4A or 0.2A |
| Kontaktbelastning | Max. 30V DC, 1.5W |
| Tilslutning Voltage | 12V DC / 24V DC (stabilized) |
| Certificeringer | EN14846, EN179, EN1125 |
| Produktmål (L x B x H) | 32 x 9 x 3.5 cm |
| Varens vægt | 1.15 kg |


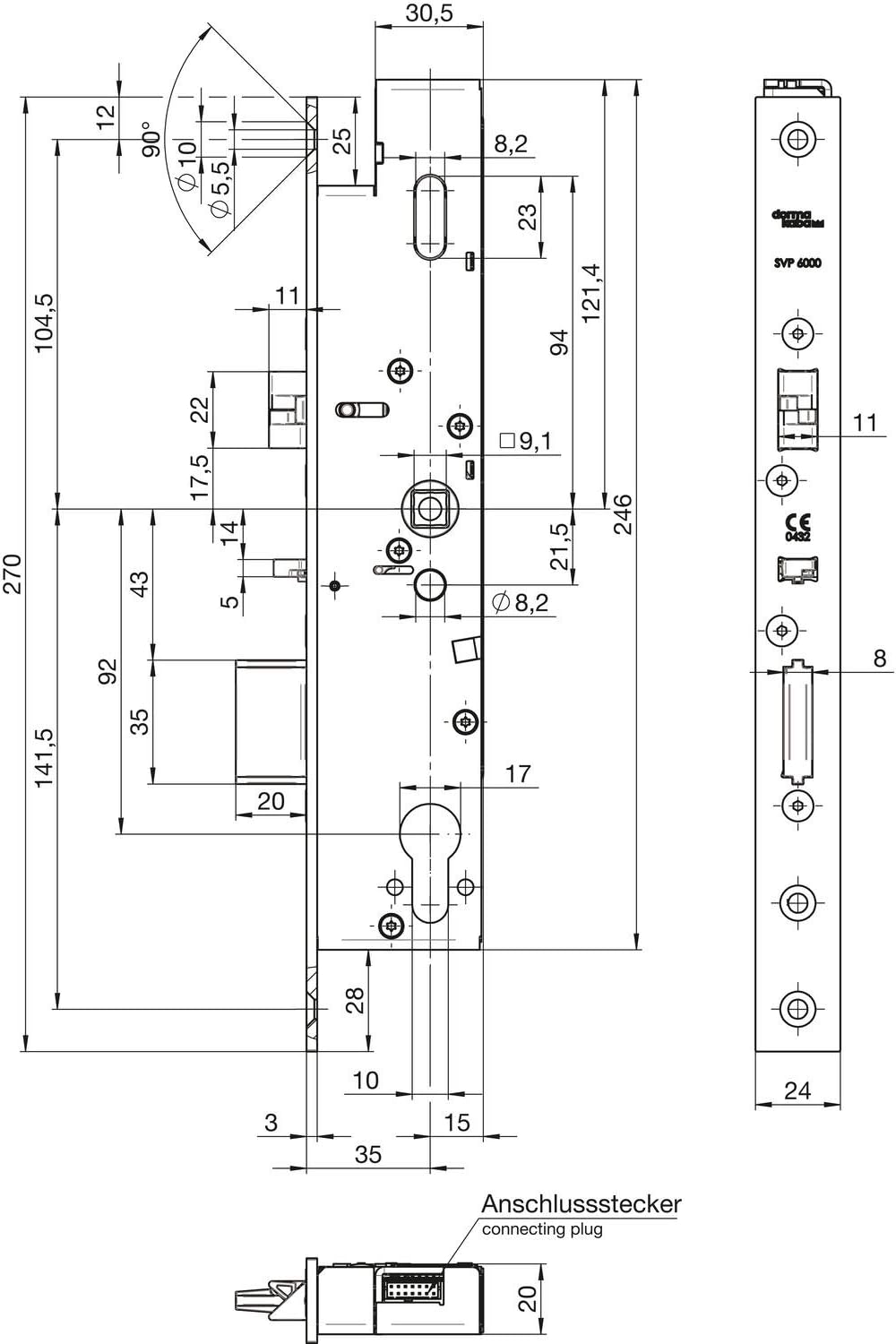
5. Opsætning og installation
Installation should be performed by qualified personnel in accordance with the provided technical drawings and local regulations. The lock is designed for right-hand swing doors.
5.1 Kontroller før installation
- Verify door handing (right-hand).
- Confirm door dimensions match the lock's mandrel (35mm) and cuff (24mm) specifications.
- Ensure all necessary components are present.
5.2 Mekanisk installation
- Prepare the door and frame according to the technical drawing (Figure 4.1), ensuring precise mortising for the lock body and strike plate.
- Insert the lock body into the mortise.
- Secure the lock body with appropriate screws.
- Install the cylinder and door furniture (lever handle or panic bar) with the 9mm split square nut.
- Mount the strike plate on the door frame, ensuring proper alignment with the latch and deadbolt.
5.3 Elektrisk tilslutning
The lock requires a universal connection to 12V DC or 24V DC (stabilized) without prior conversion. A continuous connection of the outer pressure can be used for day-operation.
- Connect the lock using the SVP-A 1100 connection cable (ordered separately).
- Ensure correct polarity and secure connections to avoid malfunction.
- The control of the front pusher is generated via the GND connector with potential-free locks (working current) or opener (resting current).
6. Betjeningsvejledning
The SVP 6710 is designed for secure and reliable operation in various scenarios.
6.1 Normal drift
- Selvlåsende: Upon closing the door, the lock automatically engages the deadbolt, securing the door.
- Access from Outside: Access is controlled via the split push button. Depending on the configuration, the external handle may be engaged or disengaged.
- Access from Inside: The internal handle or panic device always allows for immediate egress.
6.2 Panikfunktion
In an emergency, the lock allows for immediate unlocking from the inside:
- Via Lever (EN 179): Actuating the internal lever handle retracts both the latch and deadbolt, allowing the door to open.
- Via Panic Rod (EN 1125): Pushing the internal panic rod retracts both the latch and deadbolt, allowing the door to open.
6.3 Electrical Control and Monitoring
- External Pressure Control: The front pusher can be turned on or off by controlling the magnetic coil (e.g., with an access control system). This can be configured for working current (busy condition) or resting current (plugged in).
- Day Operation: A continuous connection of the outer pressure can enable day operation, keeping the door unlocked.
- Status feedback: The integrated surveillance plug provides signals for locked/unlocked status, door open/closed, handle operation, and cylinder plug status.
7. Vedligeholdelse
Regular maintenance ensures the longevity and reliable operation of your DORMAKABA SVP 6710 lock.
- Rensning: Clean the visible parts of the lock and strike plate with a soft, damp klud. Undgå slibende rengøringsmidler eller opløsningsmidler.
- Smøring: Periodically apply a small amount of non-acidic lubricant to moving parts such as the latch bolt and deadbolt, as well as the cylinder mechanism, if accessible.
- Inspektion: Regularly check for signs of wear, damage, or loose screws. Ensure the panic function operates smoothly and without obstruction.
- Professionel service: For any complex issues or internal mechanism concerns, contact a qualified locksmith or DORMAKABA service technician.
8. Fejlfinding
If you encounter issues with your SVP 6710 lock, consider the following common problems and solutions:
- Lock not engaging/disengaging properly:
- Kontrollér for forhindringer i dørkarmen eller slutblikket.
- Ensure the door is properly aligned and not sagging.
- Verify that the cylinder is correctly installed and functioning.
- Panic function not working:
- Ensure the internal lever or panic bar is not obstructed.
- Check for any mechanical binding.
- Electrical control issues (e.g., day operation not working):
- Verify all electrical connections are secure and correctly wired (refer to installation section).
- Check the power supply to the lock.
- Consult the documentation for your access control system, if applicable.
If problems persist after attempting these solutions, contact DORMAKABA customer support or a certified technician.
9. Garanti og support
For warranty information, please refer to the terms and conditions provided at the time of purchase or visit the official DORMAKABA website. Technical support and service inquiries can be directed to your local DORMAKABA representative or authorized dealer.
DORMAKABA Official Webwebsted: www.dormakaba.com





